- Типоразмеры
- Преимущества гофрированных труб КОРСИС
- Монтаж трубопроводов
- Сфера применения и особенности полиэтиленовых труб КОРСИС
- Купить гофрированные трубы КОРСИС в Казани
– Скачать прайс-лист
– Скачать техническое описание
| Трубы линейки КОРСИС | КОРСИС SN8
|
КОРСИС SN10
|
КОРСИС ПРО SN16
|
КОРСИС ПРО SN8
|
КОРСИС ЭКО SN +/-8
|
| Нормативная документация | ТУ 2248-001-73011750-2013 ГОСТ Р 54475-2011 |
ТУ 2248-031-73011750-2014 Требования выше ГОСТ |
ТУ 2248-001-73011750-2013 ГОСТ Р 54475-2011 |
ТУ 2248-001-73011750-2013 ГОСТ Р 54475-2011 |
ТУ 2248-027-73011750-2013 Требования ниже ГОСТ |
| Материал труб | ПЭ | ПЭ | ПП | ПП | Вторичный ПЭ |
| Тип профиля |
|
||||
| Комплектация и упаковка | ПЭ литьевая муфта КОРСИС OD/ID, уплотнительные кольца соотвестсвующего профиля Отрезки с приваренными раструбами по 6 и 12 метров. Для КОРСИС ПРО отрезки с приварными раструбами по 6 метров (отрезки по 12 метров — под заказ) |
||||
| Рабочая температура | от 0 до 40°С | от 0 до 40°С | от 0 до 95°С | от 0 до 95°С | от 0 до 40°С |
| Расширенный температурный диапазон для монтажа | от -40°С до +60°С | от -40°С до +60°С | от -20°С до +60°С | от -20°С до +60°С | от -20°С до +60°С |
| Прайс | Равный | +20-25% к SN8 | Равный | -50% от SN8 | |
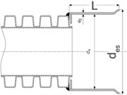
Типоразмеры
| Типоразмеры по номинальному наружному диаметру OD | ||
| Наружный диаметр, мм | Внутренний диаметр, не менее(справочно) | Наружный диаметр приварного раструба, des |
| 110 | 91 |
|
| 160 | 136 | |
| 200 | 171 | |
| 250 | 213 | |
| 315 | 271 | 336 |
| 400 | 343 | 430 |
| 500 | 427 | 535 |
| 630 | 535 | 665 |
| 800 | 687 | 846 |
| 1000 | 851 | 1052 |
| 1200 | 1030 | 1265 |
| Типоразмеры по номинальному внутреннему диаметру ID | ||
| Внутренний диаметр, мм | Наружный диаметр (справочно) | Наружный диаметр приварного раструба, des |
| 200 | 225 | - |
| 300 | 364 | - |
| 400 | 487 | 556 |
| 500 | 603 | 670 |
| 600 | 720 | 805 |
| 800 | 964 | 1035 |
| 1030 | 1200 | 1265 |
Преимущества гофрированных труб КОРСИС
Полиэтиленовые трубы КОРСИС ГОСТ отличаются следующими важными моментами:
- ударопрочность;
- стойкость к воздействию высоких температур;
- улучшенное сопротивление истиранию, механической деформации;
- устойчивость к агрессивным химическим средам;
- высокая кольцевая жесткость, при этом небольшой вес изделия;
- низкая вероятность аварийных ситуаций;
- полная герметичность трубопровода;
- оперативный и легкий монтаж.
При соблюдении правил установки и использования срок эксплуатации достигает 50 лет. Продукция полностью соответствует действующему ГОСТ Р 54475-2011.
Монтаж трубопроводов
Трубы КОРСИС и КОРСИС ПРО соединяются с помощью муфты и уплотнительных колец. Если труба оснащена приваренным раструбом, присоединяемая труба оснащается уплотнительным кольцом и стыкуется в раструб.
- Уплотнительное кольцо устанавливают в первую (для труб диаметром 250–1200 мм) или вторую (для труб диаметром 200 мм и менее) впадину между гофрами, причем уплотняющий профиль «язычок» должен быть направлен в сторону ближайшего торца трубы. Указанное положение «язычка» гарантирует эластичное прилегание кольца к муфте по всему периметру и обеспечивает полную герметичность системы.
- Для монтажа соединения края трубы, муфта/раструб и уплотнительное кольцо должны быть предварительно очищены чистой тканью от масла, грунта, песка и прочих загрязнений.
- Перед установкой муфты/раструба ее внутреннюю поверхность также как и наружную поверхность установленного уплотнительного кольца необходимо покрыть силиконовой водоотталкивающей смазкой. В холодное время года рекомендуется использовать густую силиконовую смазку целевого назначения.
Монтаж осуществляется с помощью простых рычажных устройств.

Установка муфты производится с постоянным и одинаково распределенным усилием вдоль оси. Рекомендуется избегать применения любых ударных воздействий (отбойных молотков и кувалд), которые могут привести к повреждениям муфты и уплотнительного резинового кольца.
Сфера применения и особенности полиэтиленовых труб КОРСИС
«Синтез Пайп» предлагает выбрать гофрированные трубы КОРСИС, которые характеризуются отличными характеристиками. Благодаря свойствам используются для организации:
- бытовых и ливневых канализационных систем безнапорного типа;
- водостоков;
- сбора промышленных вод.
В зависимости от типа проекта подбирается определенный тип трубопровода. В каталоге представлены трубы КОРСИС SN8, SN16, которые отличаются расширенным температурным диапазоном для осуществления монтажа. Также в наличии трубы КОРСИС ПРО. Установка предусматривает использование муфты и уплотнительных колец. Плюсом считается универсальность подбора фитингов и возможность соединения с резервуарами различного типа. Для ряда вариантов используется раструбная система монтажа.
Купить гофрированные трубы КОРСИС в Уфе
Завод «Синтез Пайп» предлагает купить трубу КОРСИС по оптовой цене. В наличии и под заказ широкий ассортимент качественной полиэтиленовой продукции. Оказываем профессиональные консультации по вопросам подбора изделий для реализации проектов с определенными требованиями. Гарантируем своевременную отгрузку заказа, доставка выполняется от 1 рабочего дня на объект клиента.
Узнать актуальную расценку в смете на трубы КОРСИС можно следующими способами:
- звонок по телефону: 8 (800) 500-88-74;
- письмо на электронную почту: info@sintezpipe.ru;
- заполнение формы обратной связи.
Опытные менеджеры помогут уточнить действующую цену в прайсе гофрированных труб КОРСИС.
